【合肥红点装饰】国贸天悦120㎡设计方案丨新中式的韵
【项目名称】:国贸天悦
【户型结构】:3室2厅1厨1卫
【户型面积】:120 m²
【设计风格】:简约新中式
【装饰公司】:合肥红点装饰
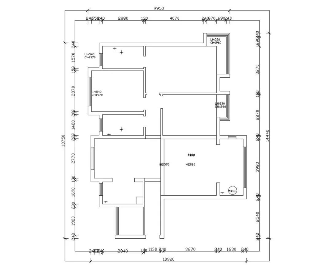
户型↑

平面布置图↑
户型优缺点:厨房,餐厅空间不够大,衣帽间小。
客户需求:业主是中年夫妻带个仙女般的女儿一起居住。职业是老师,需要3个卧室,书房。足够多的储物空间,因为是改善型住房,希望在品味上可以提升,看起来高大上又简洁。所以推荐了符合客户职业的新中式风格!

整个色彩上以明亮为主,既体现现代时尚感,又不显得复杂。

此户型客餐厅一体感官上空间比较大,进门入户花园改造成开放式书房,这样满足客户老师的工作需求。北阳台比较鸡肋,所以改成餐厅,做了一排长矮柜,增加储存空间。主卧由于门洞对着大门,改到侧边,卫生间和衣帽间就做了一个暗藏的步入式衣帽间。这样的安排别有洞天!

楼层比较高,所以整个色调以明亮的暖色系作为主打。家毕竟是生活的港湾,
有爱的地方,舒适温馨是唯一宗旨!
如果你正在看装修那就请拨打:13721115152(微信同号),合肥红点装饰提供个性化定制全案服务

0